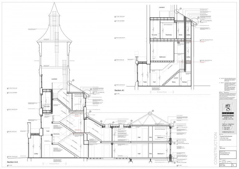
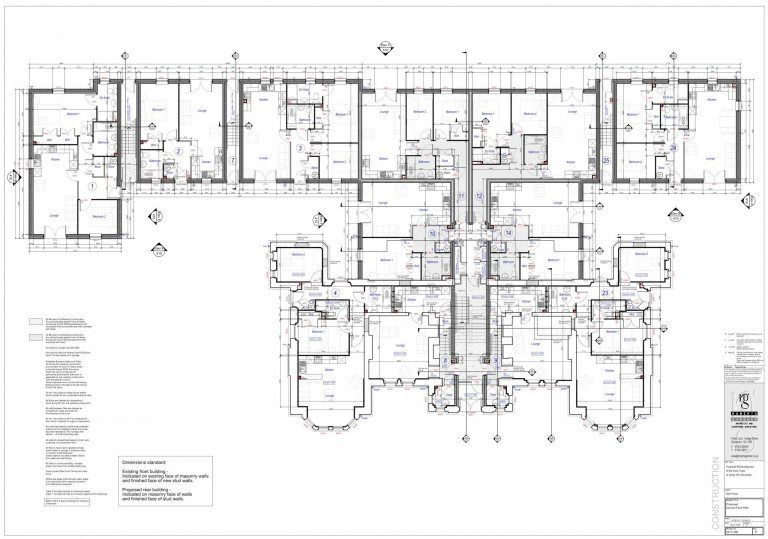
The Clock Tower, Gloucester

Works involved the restoration and conversion of the existing Clock Tower and administration building of the former Gloucestershire County Asylum, which is a substantial, brick built structure, completed circa 1880. A severe arson attack in 1999, resulted in the collapse of much of the building. In addition to the restoration and conversion of the existing building into residential apartments, works also included the construction of a new build, two storey apartment building, of traditional loadbearing masonry construction. A full structural engineering design service was provided for the project, including site works.